ページの本文です。
2017年9月28日更新
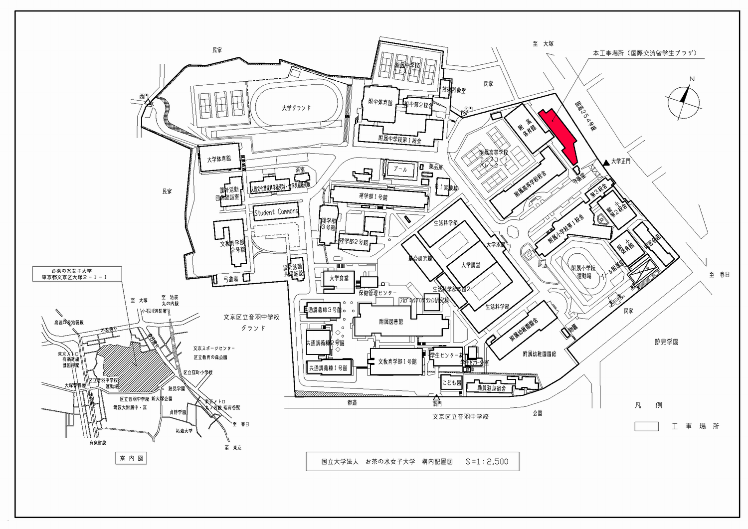
お茶の水女子大学は、国際交流・地域貢献・世代間交流の3つの目的をもつ集いの場として、「国際交流留学生プラザ(仮称)」(4階建、延床面積2370平方メートル)を、正門(東門)脇に建設することを決定しました。平成30年に工事を開始し、平成31年3月オープンを予定しています。
プラザ内には、1F大学インフォメーションセンター、国際交流室、カフェ、2F多目的ホール、3Fセミナー室、4F宿泊施設などの施設を設けます。また、大学および附属校園卒業生との連携を目的とする同窓会コモンズ(会議室、事務室など)を設けます。ステンドグラスや陶板アートなどのパブリックアートを設置し、国内外に開いたプラザとして、本学の未来のシンボルとなるものです。設計は、隈研吾建築都市設計事務所に委託しております。
建設にあたっては、その資金として、株式会社ぐるなび会長・CEO滝久雄氏、および本学同窓会(桜蔭会、作楽会、鏡影会、茗鏡会、ちぐさ会および卒業生)から多額のご寄附をいただいております。なお、本施設へのご寄附を、「未来開拓基金」として、引きつづき、おうけしております。
平成29年9月
国立大学法人 お茶の水女子大学
http://www.ocha.ac.jp/contribution/category/mirai.html
※国際交流留学生プラザ「カフェテリア」運営に係る業務委託の公募は平成29年12月8日にて締切りました。

外観イメージ図(画像提供:隈研吾建築都市設計事務所)

配置図(PDFデータはこちら)