お茶大図書館リニューアル後のイメージ(予定)
2017年1月16日更新
図書館が本当に生きた学びの場になるためには、中で活動する利用者の存在が最も重要です。本学の教育方針と連動し、学びの主役である学生さんと一緒に、空間と人とコンテンツの相乗効果が創発される場を作って行きます。
図書館増築・改修後のフロアプラン(2016年12月時点の計画)
1階(コモンズスペース):増築300平方メートル+西館(正面玄関側)を改修
- オープンでグローバルな環境下でのコミュニケーションを伴う学びの場とします
- 学生アンケートで要望の多いくつろぎ感のある場やグループ学習室を設けます
- 開口部を北側にも設置し、キャンパス全体の人の流れを活性化します
- ゲートを1階に移設し、1階にも本が置けるようにします
- 図書館サービス部門と管理部門の事務スペース、情報基盤センターの事務室を集約し、業務の効率化・サービスの高度化を実現します

図書館1階 イメージ図
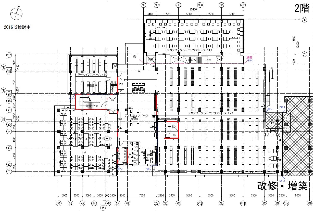
2階(ラーニングスペース):増築300平方メートル+西館(正面玄関側)を改修
- 学生アンケートで要望の多い集中して学ぶ個席を増設します
- 効率的な書架設計により蔵書収容力を高めます
- くつろぎ感のあるスペースや携帯電話用ブースも設けます

図書館2階 イメージ図
関連リンク / Related Links
»図書館増築・改修情報
»図書館増築・改修のスケジュールと学習環境について